Stone Garden - 17e Biennale Architettura
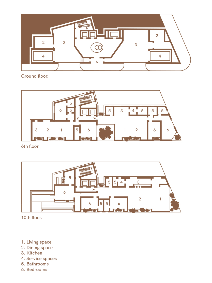
Stone Garden. Resilient Living
Une Archéologie du Futur
Autour d’une maquette immersive de « Stone Garden » (2 mètres 30 de haut), livré par Lina Ghotmeh à Beyrouth, cette exposition développe une réflexion autour de la capacité de l’architecture à agir comme un outil de conciliation et de résilience en temps de crise. Situé à 1 km de l’épicentre de l’explosion qui a ravagé la moitié de la capitale libanaise en août 2020, le projet prend racine dans une ville persistante malgré une perpétuelle précarité.
Le vernaculaire, la mémoire, la nature, le pouvoir de la main (dans la manufacture d’un paysage bâti sensible) se révèlent au travers les espaces intimes de la maquette exposée. Un monde miniature invite le visiteur à découvrir et comprendre Beyrouth comme un terrain fertile de création architecturale, photographique, et cinématographique.
Par cette installation, on y voit un « vivre ensemble » inclusif avec un projet qui tisse un rapport synergique à la nature dans un milieu urbain dense. Un manifeste optimiste de la vie avec de grandes ouvertures abritant des jardins luxuriants, invitant la nature au cœur des logements et de la ville.
Relayant la sémantique de l’architecture du projet, les nombreuses « fenêtres de vie » de la maquette s’ouvrent sur une sélection d’œuvres photographiques et vidéo dévoilant le processus de construction. Diverses scènes d'habitation présentent de singulières figurines, errantes et fantômatiques dans leur attente, entourées de photographies d’éminents artistes libanais représentant à la fois des paysages verdoyants et des paysages de guerre. Des écrans révèlent dans l'intimité la confection de la peau du bâtiment alors que lʼartisan prépare — en guise de cuisson — le plâtre mélangé, et peigne doucement lʼenveloppe comme sʼil labourait un sol fertile.
Exposition: Maquette (1:30) du bâtiment contenant des tirages photographiques, des écrans LED avec montages vidéo, des échantillons de matériaux (argile, ciment, pigments, métal), montage vidéo du bâtiment dans son contexte.
Oeuvres miniatures dans la maquette — photos de Ali Cherri, Nadim Asfar, Gregory Buchakjian, Gilbert Hage / films de Ieva Saudargaite et Ghassan Salhab.
Ecran d'arrière-plan — photos d'Iwan Baan / film drone de Wissam Charaf et Chloe Domat.
Copyrights
Photos © Lina Ghotmeh — Architecture


Installation exposée dans la section "Corderie" de l'Arsenale de la Biennale

Maquette (1:30), échantillons de matériaux et outils, écran LED

Vidéo projetée. Photos © Iwan Baan / Film en drone © Wissam Charaf et Chloe Domat


Peigne conçu sur mesure et utilisé par les artisans pour labourer la façade du bâtiment

Echantillons de matériaux (argile, ciment, pigments, métal), expérimentations en atelier, outils de construction


Ruines, vestiges

Mises en scène composées de photographies et films d’artistes libanais représentant à la fois des paysages de nature et de guerre







Ruines, vestiges

Artisans locaux peignant la peau du bâtiment

Deconstruction du peigne conçu sur mesure pour la confection de la façade

Ruines, vestiges

Figurines fantômatiques, en attente parmi les diverses œuvres d'art dépeignant Beyrouth et son histoire



Des écrans révèlent dans l'intimité des espaces intérieur la confection vernaculaire de Stone Garden






