Pavillon du Bahreïn à l’Expo 2025 d’Osaka
Embankment – Anatomy of a Dhow
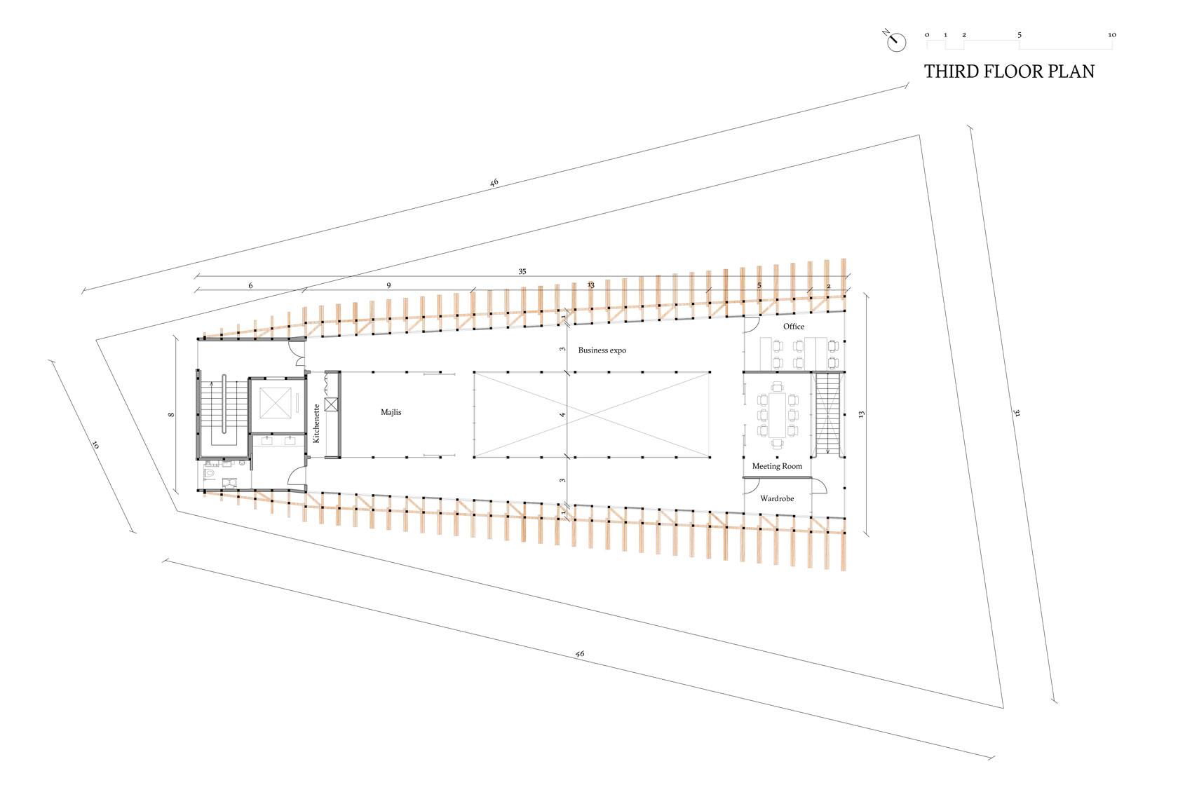
Le Pavillon de Bahreïn à l’Expo 2025 d’Osaka est un témoignage de durabilité, d’échange culturel et de savoir-faire artisanal. Inspiré par l’héritage maritime bahreïnien et le savoir-faire japonais en construction bois, sa forme ouverte, rappelant un dhow en construction, évoque les navires qui naviguaient autrefois entre l’Arabie orientale et l’Afrique de l’Est, symbolisant le voyage et l’interconnexion. Construit à partir de plus de 3 000 pièces de bois non transformé et assemblé selon des techniques de menuiserie complexes, il minimise le gaspillage, ne nécessite aucun matériau supplémentaire et repose sur des fondations réduites, évitant ainsi le béton et garantissant une réutilisation quasi totale des matériaux.
Situé en bord de mer, le pavillon invite les visiteurs à un voyage sensoriel à travers la relation profonde de Bahreïn avec la mer, où tradition et innovation se mêlent harmonieusement. Sa structure en bois légère met en valeur à la fois l’artisanat bahreïnien et le savoir-faire japonais, créant un espace immersif qui éveille les sens. Le refroidissement passif, assuré par une ventilation naturelle, réduit la consommation d’énergie et renforce son engagement en faveur du développement durable.
Aligné sur le thème « Empowering and connecting lives», le pavillon explore le rôle fondamental de la mer dans l’avenir du Bahreïn, en tant qu’économie tournée vers le futur et centre d’innovation. Bien plus qu’un simple ouvrage architectural, il incarne une vision optimiste où les connaissances du passé éclaire le chemin vers un avenir durable et épanouissant.
[…] [×]
© Iwan Baan

© Iwan Baan

© Iwan Baan

© Iwan Baan

© Iwan Baan

© Iwan Baan

© Iwan Baan

© Iwan Baan

© Iwan Baan

© Iwan Baan

© Iwan Baan

© Ishaq Madan

© Ishaq Madan


© Ishaq Madan

© Ishaq-Madan

© Ishaq Madan

© Ishaq Madan

© Lina Ghotmeh — Architecture

© Lina Ghotmeh — Architecture

© Lina Ghotmeh — Architecture

© Lina Ghotmeh — Architecture

© Lina Ghotmeh — Architecture

© Lina Ghotmeh — Architecture

© Lina Ghotmeh — Architecture

© Lina Ghotmeh — Architecture

© William Mulvihill

© William Mulvihill

© William Mulvihill

© William Mulvihill