The Bahrain Pavilion at Expo 2025 Osaka
Embankment – Anatomy of a Dhow
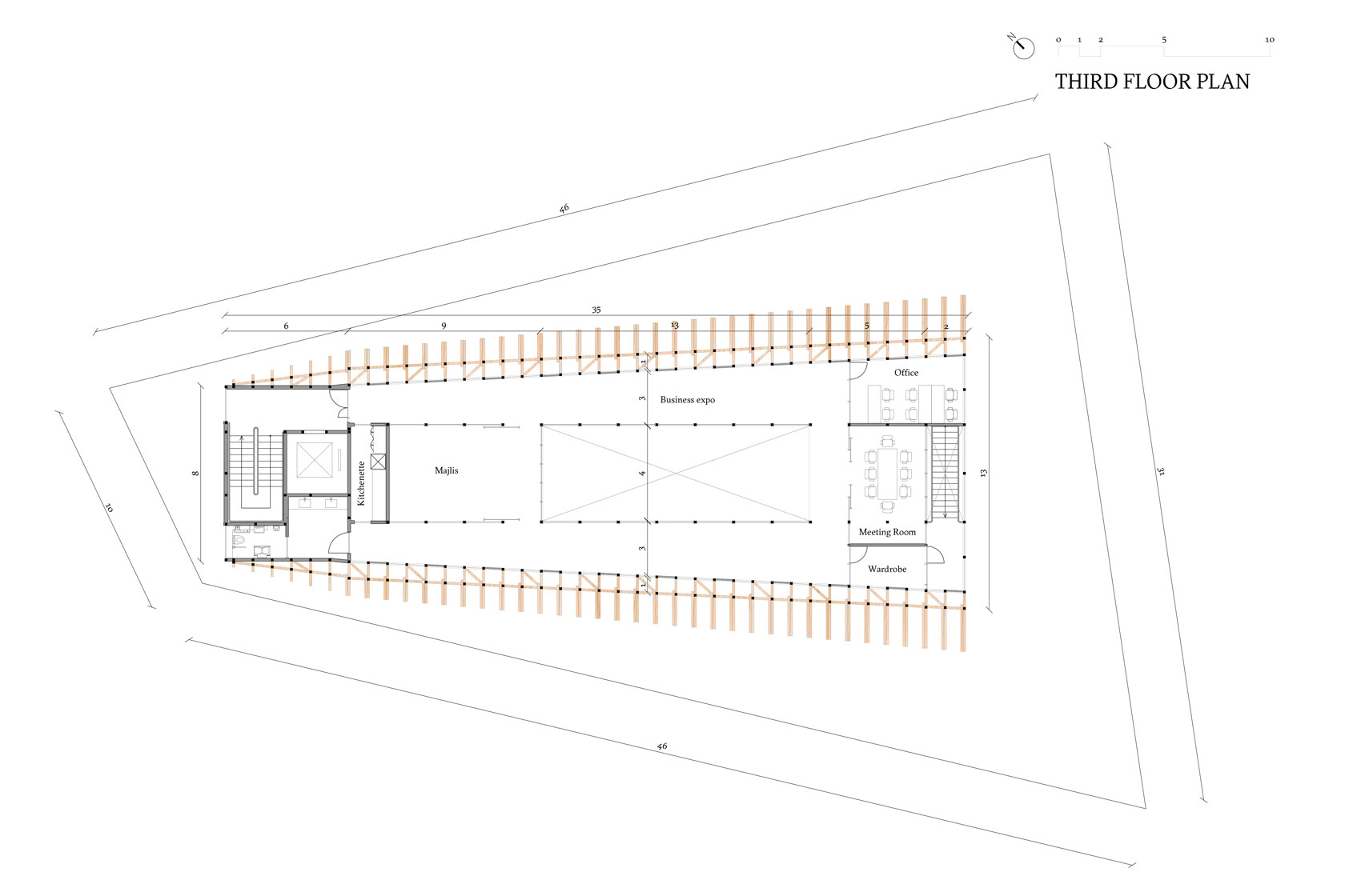
The Bahrain Pavilion at Expo 2025 Osaka is a testament to sustainability, cultural exchange, and craftsmanship. Inspired by Bahraini maritime heritage and Japanese carpentry, its open, dhow-like form evokes the vessels that once navigated Eastern Arabia and East Africa, symbolizing travel and interconnectedness. Constructed from around 3,000 pieces of unengineered wood using intricate joinery, it minimizes waste, requires no additional materials, and rests on minimal foundations to avoid concrete bedding, ensuring nearly all materials are reusable.
Positioned along the seashore, the pavilion invites visitors on a sensory-rich journey through Bahrain’s deep connection to the sea, where tradition and innovation merge seamlessly. Its lightweight timber structure highlights both Bahraini craft and Japanese wood artistry, creating an immersive space that awakens the senses. Passive cooling through natural ventilation reduces energy use, reinforcing its commitment to sustainable design.
Aligned with the theme “Empowering and Connecting Lives,” the pavilion explores how the sea shapes Bahrain’s future as a forward-looking economy and a hub of innovation. More than just an architectural landmark, it embodies an optimistic vision where past wisdom guides the path toward a sustainable and fulfilling future.
[…] [×]
© Iwan Baan

© Iwan Baan

© Iwan Baan

© Iwan Baan

© Iwan Baan

© Iwan Baan

© Iwan Baan

© Iwan Baan

© Iwan Baan

© Iwan Baan

© Iwan Baan

© Ishaq Madan

© Ishaq Madan


© Ishaq Madan

© Ishaq-Madan

© Ishaq Madan

© Ishaq Madan

© Lina Ghotmeh — Architecture

© Lina Ghotmeh — Architecture

© Lina Ghotmeh — Architecture

© Lina Ghotmeh — Architecture

© Lina Ghotmeh — Architecture

© Lina Ghotmeh — Architecture

© Lina Ghotmeh — Architecture

© Lina Ghotmeh — Architecture

© William Mulvihill

© William Mulvihill

© William Mulvihill

© William Mulvihill